Reforma interior a Sants
Disseny interior
Sants, Barcelona · 2023 · 65m2 · càlcul d’estructures: Ofici Arquitectura · fotografia: Judith Casas
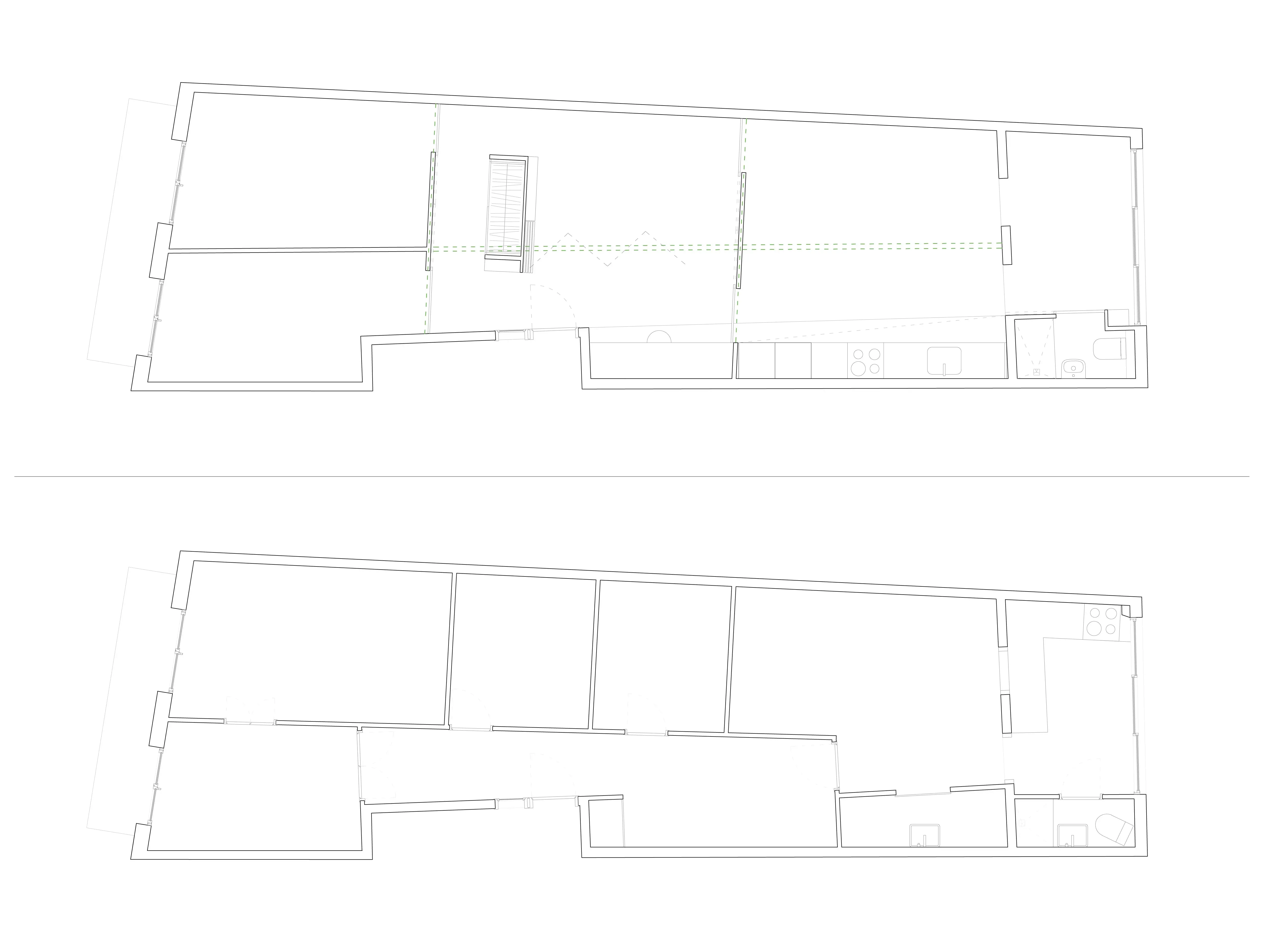
La proposta busca millorar les condicions inicials de l'habitatge i posar-ne en valor els elements distintius. Hi ha dos condicionants principals a l'hora de plantejar la intervenció: en primer lloc una geometria allargada que feia difícil aprofitar la zona central, i la posició dels baixants comunitaris que impedia situar la cuina i lavabo lluny d’aquests.
Tenint en compte aquests factors, es decideix mantenir els dormitoris a la façana que dóna al carrer, la sala d'estar a la façana interior d’illa i alliberar l'espai de la galeria portant la cuina oberta a l’estar. El bany es manté en la mateixa posició, encara que se n'amplia lleugerament la superfície, creant així un bloc de peces humides adjacent a la mitgera, que deixa lliure la resta d'espai per a les altres estances.
La col·locació d'una nova biga trencallums de façana a façana articula la nova distribució de l'habitatge. Els suports de la biga es col·loquen uns 60cm per sota, permetent tenir un espai sobre les particions que deixa passar la llum natural de les dues façanes fins al centre de l'habitatge i permet percebre de punta a punta tot el forjat de volta ceràmica original. Es protegeix la biga per garantir la seva estabilitat al foc cobrint-la amb un calaix de cartró-guix donant l'aparença d'un gran element estructural recolzat sobre dos suports i es posa en valor amb un remat de DM hidròfug, amb el color verd com a fil conductor de tota la intervenció.
Es recupera una part del mosaic hidràulic d'algunes estances i es col·loca al centre del pis, com si fos una catifa, reivindicant aquesta zona de l'habitatge com un espai polivalent que es pot utilitzar com a menjador, estudi o habitació per a convidats i que gaudeix de la llum natural que passa per les finestres interiors sobre les bigues de suport. La polivalència d’aquest espai ve realçada pel tancament mòbil que permet donar intimitat a aquesta zona quan és necessari.


